FAG 22318-E1-K-T41A+H2318軸承
我公司專業銷售FAG22318-E1-K-T41A+H2318,能為客戶提樣本圖片,軸承22318-E1-K-T41A+H2318的品牌的调心滚子轴承,需要此型號配合安裝尺寸、重量、價格、報價等資料請聯系銷售人員!
咨詢電話:0512-62658883 我公司還銷售相關軸承:
22336-MB軸承 FAG軸承22356-K-MB+AH2356G FAG 22309-E1-K+H2309 22318-E1-K-T41A+AHX2318軸承 FAG軸承22308-E1-K FAG 22312-E1 22316-E1-K+H2316軸承 FAG軸承22311-E1
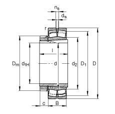
调心滚子轴承 22318-E1-K-T41A + H2318
|
  |
| 根据 DIN 635-2 标准的主要尺寸, 带锥孔和紧定套 |
|
|
|
组件 |
 |
|
|
|
|
|
|
d1H
|
80
mm
|
|
|
D
|
190
mm
|
|
|
B
|
64
mm
|
|
|
| |
|
Ba min
|
6
mm
|
|
|
c
|
18
mm
|
|
|
D1
|
162,5
mm
|
|
|
Da max
|
176
mm
|
|
|
Dm
|
120
mm
|
|
|
d
|
90
mm
|
|
|
d2
|
110,2
mm
|
|
|
da max
|
110
mm
|
|
|
db min
|
100
mm
|
|
|
ds
|
6,3
mm
|
|
|
l
|
86
mm
|
|
|
ns
|
12,2
mm
|
|
|
ra max
|
2,5
mm
|
|
|
rmin
|
3
mm
|
|
|
| |
|
|
H2318
|
|
|
m
|
8,33
kg
|
|
|
m1
|
1,71
kg
|
|
|
Cr
|
610000
N
|
|
|
e
|
0,33
|
|
|
Y1
|
2,03
|
|
|
Y2
|
3,02
|
|
|
C0r
|
630000
N
|
|
|
Y0
|
1,98
|
|
|
nG
|
3600
1/min
|
|
|
nB
|
3000
1/min
|
|
|
Cur
|
55000
N
|
|
|
|
此軸承還可以用于:打釘機 膠裝機 模具 真空吸盤 多級減速機 壓底機 縫鞋機 裝訂機 滑動導軌 工業干燥箱 上膠機 排污泵 制鞋機械 打孔機 包衣機 機床刀架 沖孔機 裁斷機 真空泵 切紙機
推薦型號:22318-E1-K-T41A+H2318軸承 FAG B71902-E-2RSD-T-P4S FAG PWTR45100-2RS FAG B7020-C-2RSD-T-P4S FAG HCB7011-C-2RSD-T-P4S FAG 23234-E1A-K-M+H2334 FAG RSHEY17 FAG 16013 FAG NU2260-EX-M1 FAG 54218+U218 FAG K10X16X12-TV FAG HCS7013-C-T-P4SFAG 1224-MFAG 21315-E1FAG HCB71940-C-T-P4SFAG SL045018-PPFAG 239/670-B-K-MBFAG CSEF055FAG EW1-3/4FAG Z-566484.ZL-K-C5FAG NUP2210-E-TVP2
恩梯必傳動設備(蘇州)有限公司 ©2022 | FAG軸承_INA軸承